casa LINEA
 
Progetto completo, direzione lavori, arredi di massima
SUPERFICIE 52 mq
LUOGO Milano
CRONOLOGIA Progetto e realizzazione 2013

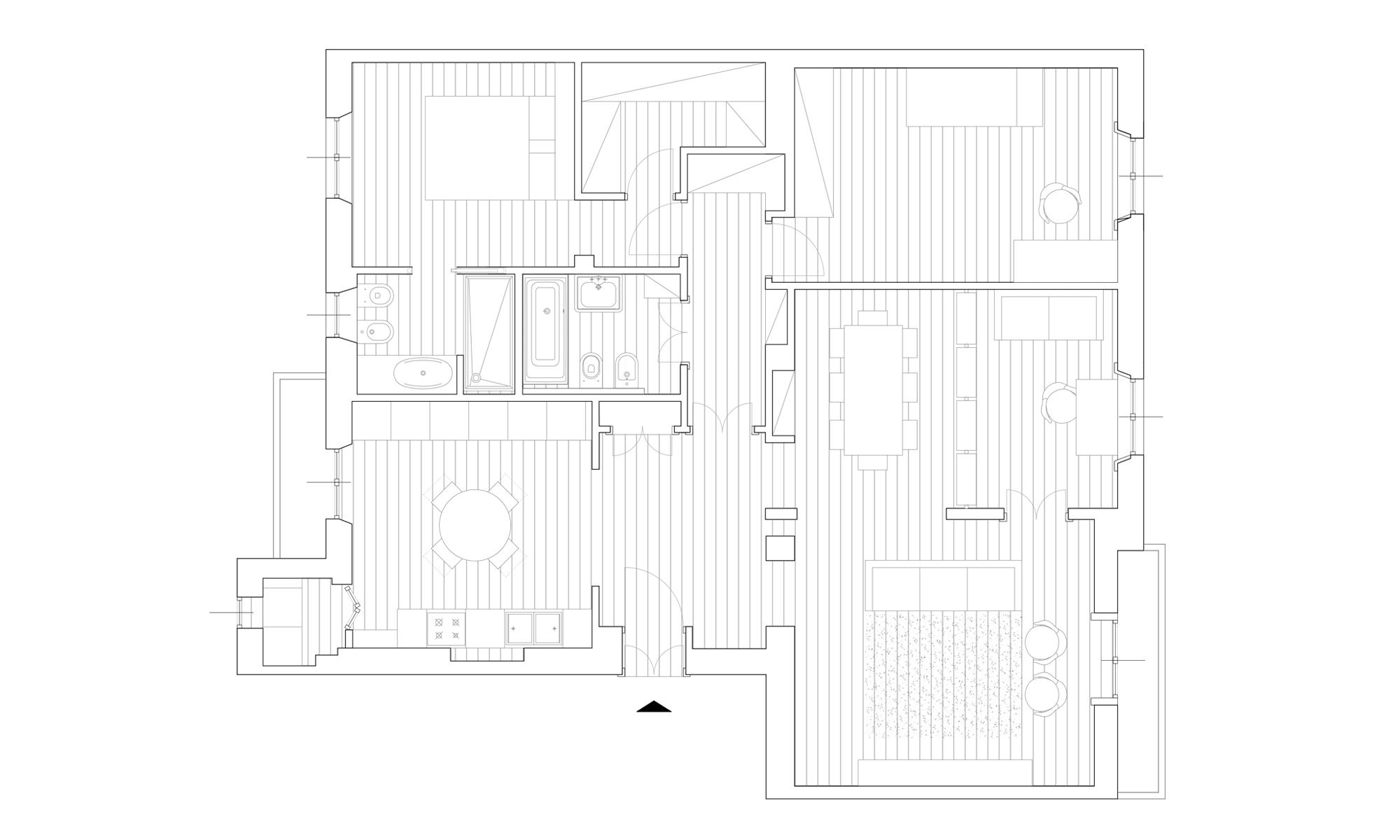
In un palazzo dei primi del '900 costruito per le famiglie dei dirigenti statali al tempo del Fascio, l'appartamento si trovava in cattive condizioni e presentava una distribuzione interna che nella sua tradizionalita risultava poco compatibile con le esigenze della committenza. L'intervento si è posto come obbiettivo il ripensamento dell'assetto distributivo interno e la sostituzione della gran parte delle finiture, ma allo stesso tempo ha tentato di preservare il carattere storico degli interni.

Il principio progettuale è stato quello di ruotare di 90 gradi l'asse della distribuzione. Se prima il grande atrio di ingresso dava allo spazio una prevalenza longitudinale rispetto alle facciate, la nuova soluzione accentua la permeabilità trasversale mettendo in diretto collegamento i due affacci paralleli. Sul lato destro del nuovo ingresso, ricavato ridimensionando quello originale, si aprono soggiorno e sala da pranzo verso la facciata principale, mentre sul lato sinistro si trova il grande ambiente della cucina con affaccio sul cortile interno. La scala degli ambienti originali viene preservata, quello che varia è la dimensione e il carattere delle bucature di collegamento tra gli ambienti, che ingrandendosi e moltiplicandosi permettono la continuità visiva e funzionale tra le parti. Un sistema di portali, travi e sopraluce che inglobando la struttura portante diventano elemento fondativo di progetto. Nella zona notte, pur mantenendo il carattere originale degli ambienti, è stata dettata dalla praticità e dalle esigenze della famiglia, cercando di sfruttare al meglio la spazio per armadi a muro, cabina armadio e bagni.

Anche nella scelta delle finiture si è deciso di mediare tra antico e moderno, rendendo sempre riconoscibile l'intervento eseguito non solo con l'uso di materiali non tradizionali, ma anche adottando tipi di posa piu contemporanei nell'utilizzo di finiture tradizionali. Da un lato si sono sostituiti i pavimenti originali ormai inservibili con un parquet continuo in listoni di rovere che enfatizza la permeabilità degli ambienti, dall'altro si sono recuperate le porte originali, modificandole dove necessario e riutilizzandole in nuove posizioni e valorizzandole per affiancamento alle porte di tipo rasomuro prive di decorazioni. Si sono preservate le chiambrane originali delle finestre e, dove lo spostamento dei muri è andato a contrastare con i decori in gesso dei soffitti, si sono di volta in volta studiate soluzioni ad hoc. In alcuni casi si è preservato il disegno originale, ne è un esempio l'escamotage della gola per l'alloggiamento dei faretti in soggiornoin altri lo si è modificato in modo tanto eclatante, nel caso del decoro che scende sulla parete della camera da letto dei bambini.

Nei bagni infine si è optato per un rivestimento continuo in resina, che accompagna elementi piu tradizionali, come i sanitari in stile e la cornice dello specchio realizzata con le poche cementine recuperate dalle demolizioni.

 
GIULIETTA BOGGIO ARCHIDESIGN - P.Iva 07074700969 - studio@gbarchidesign.it
GIULIETTA BOGGIO ARCHIDESIGN
P.Iva 07074700969
studio@gbarchidesign.it