casa QUINTA
 
Progetto completo, direzione lavori, arredi
SUPERFICIE 52 mq
LUOGO Milano
CRONOLOGIA Progetto e realizzazione 2013

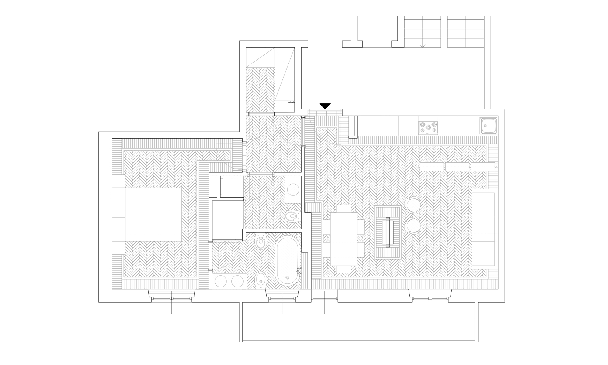
L'appartamento si trova al limite del quartiere Isola di Milano. L'intervento ha riguardato il completo ripensamento degli spazi interni di un vecchio studio dentistico per riportarlo all'uso originario di abitazione.

La soluzione progettuale ha determinato la netta divisione tra zona notte e zona giorno adottando soluzioni compositive differenti tra loro.

Nel grande ambiente del soggiorno lo spazio fluisce liberamente ma allo stesso tempo una serie di elementi filtro identifica le zone destinate alle differenti attività del vivere quotidiano. L'ingresso viene definito dal volume del ribassamento e dalla spalletta-libreria sottostante che scherma l'angolo cottura adiacente. Una libreria a montanti a tutta altezza divide la cucina dal salotto, permettendo il passaggio della luce, fungendo allo stesso tempo da schermo. La quinta del caminetto si frappone tra soggiorno e sala da pranzo concedendo a quest'ultima una maggiore intimita.

La zona notte, invece, è caratterizzata da ambienti chiusi piu adatti alle funzioni ospitate. Nonostante questo lo spazio rimane fluido: le stanze si susseguono collegate le une alle altre in una sequenza continua. Dal disimpegno con cabina armadio si accede alla camera da letto, da questa si passa al bagno padronale, collegato a sua volta al piccolo bagno di servizio attraverso la doccia passante, per poi ritornare al punto di partenza del disimpegno. Questa soluzione distributiva ha permesso di sfruttare al meglio gli spazi, favorendo la funzionalita degli ambienti.

 
GIULIETTA BOGGIO ARCHIDESIGN - P.Iva 07074700969 - studio@gbarchidesign.it
GIULIETTA BOGGIO ARCHIDESIGN
P.Iva 07074700969
studio@gbarchidesign.it